얼마전에 새로 차를 산 조카 녀석에게 작은 아버지는 이런 저런 당부의 말을 구구절절히 늘어 놓으신다. 안전운전하라고 말이다. 난 뭐 옆에서 구경이나 하다가 한마디 좀 거들었다. 급하게 하지말고 천천히 여유롭게 하라고 말이다. 괜히 실력도 없는데 성급하면 사고난다. 끝!
얼마전에 검사를 했던 집, 누수 문제가 있었다고 했는데 집이 영 깨끗하다. 말이 좀 이상하지만 나도 이상하게 느꼈기 때문에 하는 얘기이다. 이상하다. 왜 누수가 꽤 심각했던 것 같은데 별 문제가 없지?
목조주택 처음 공부하는 사람들은 지붕 벤트가 꼭 있어야만 하고 없으면 심각한 문제가 된다고들 알고 있다. 게다가 유튜브등엔 마치 지붕벤트가 없어서 집이 다 망가진 듯 얘기하는 사례들도 많다. 그러니 초보자들 생각엔 '지붕벤트가 없으면 그건 바로 문제! ' 하는 식의 공식들이 있다. 하지만, 그건 초급 산수에나 쓰이는 공식같은 것이지 더 높은 수학의 세계에 올라가면 꼭 그런 것은 아니다. 실제로 검사를 나가보면 지붕벤트가 없어도 별 문제가 없는 집들도 꽤 있다. 왜 그럴까?
이유는 내가 차를 새로 산 조카에게 해 준 말과 같은 원리가 집에도 적용이 되기 때문이다. 여유의 문제이다!
집도 차 운전하는 것이나 마찬가지로 여유가 많으면 문제가 잘 안생긴다. 이래서 집이나 사람은 여유가 있어야만 한다. ^^
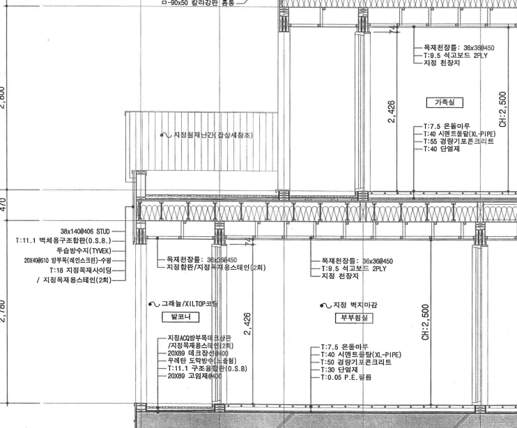
검사했던 집의 누수가 되었다던 데크 부분의 단면도이다. 여기서 뭐가 누수가 되어도 문제가 되질 않게 만든 요소일까?

요즘 집은 이런 식이다. 이건 철콘이긴 하지만 문제가 생기는 양상은 비슷하다. 이런 구조에선 누수가 생기면 바로 문제가 된다. 위의 것과 한번 비교해 보시기 바란다. 뭐가 다른 점일까?

혹시 오해할까봐서 미리 얘길하자면 데크 위쪽의 방수층 얘길하는 것이 아니다. 그런 구조와 방수기법등에 따라서 차이가 있으니 그 부분은 그냥 참고만 하시고 비교해 보시기 바란다. 이 집도 누수 문제때문에 고생하던 집이다.
누수가 있었어도 별 문제가 없던 집의 가장 큰 특징은 바닥과 천정 부분의 두께이다. 특히, 천정위 빈 공간이 넓직하다. 아래 도면과 비교해 보시기 바란다. 지붕이나 천정속이 넓직하면 누수 등의 하자문제가 발생했을때 여유가 많아진다. 누수된 물이야 어디론가를 통해서 빠져 나가버린다. 이 집에선 보일러실 벽체를 타고 흘러나간 것 같다. 이쪽으로 물이 흘러내린 자국이 남아있다. 안나가고 고여있다면 당연히 빼주어야만 한다. 지켜보기만 하면 안된다.

어쨋거나 물이 빠지고 남는 것은 젖은 석고보드인데, 그 젖어버린 석고보드가 마르기 위해선 공기와의 충분한 접촉이 있어야만 한다. 그럴 때 천정위 빈 공간의 크기가 작용을 한다. 그곳이 넓직하면 잘 마르고 별 문제가 없고, 그곳이 좁아터지면 석고보드가 잘 안마르고 곰팡이 문제가 생겨난다. 그게 천정속 빈 공간이 만들어내는 하자에 대한 완충작용, 여유 능력이다.
옛날 집들이 허술해도 문제가 적었던 것은 그런 여유가 많았기 때문이고, 요즘 집이 타이트해도 문제가 많은 것은 그런 여유가 없어졌기 때문이다. 요즘 사람들이 영 신경질적인 것도 같은 이유때문이 아닐까 싶다. 집이나 사람이나 오래 가려면 빡빡한 것 보다는 여유가 많은 것이 좋다. ^^


'주택건축및유지관리' 카테고리의 다른 글
| 진한 사골곰팡처럼 오래되고 묵은 해결되지 못한 누수문제가 늘어나는 이유 (0) | 2025.09.28 |
|---|---|
| 우레탄 스프레이폼의 수명이 짧아 생기는 문제점, 사용 부위가 하자에 취약 (0) | 2025.09.18 |
| 집은 짓는 순간이 아니라, 관리하는 순간부터 진짜 수명이 시작된다. (1) | 2025.09.11 |
| 주택 하자문제 얘기하면 집값 떨어진다고 걱정하는 분들, 보세요! (0) | 2025.09.05 |
| 문화재 지정해 놓고 관리 못해 망가지는 한옥들, 사람들이 살도록 돌려주자! (1) | 2025.09.01 |